PROJECT

- HOME
- PROJECT-施工事例-


階段/手すり施工図面集
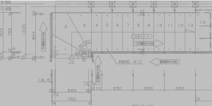
階段/手すりを中心とした施工図を作成いたします。
設計図と見積内訳書を基にお客様のご要望に合った施工図をスピーディーで正確に作成いたします。
※PDFで図面データをご覧いただけます。CADにご興味のある方はDXFデータもフリーで保存できます。ぜひご活用ください。



階段/手すりを中心とした施工図を作成いたします。
設計図と見積内訳書を基にお客様のご要望に合った施工図をスピーディーで正確に作成いたします。
※PDFで図面データをご覧いただけます。CADにご興味のある方はDXFデータもフリーで保存できます。ぜひご活用ください。

